













Descubre tu futuro hogar en Tordera
HC Living ha sido diseñado pensando en ti. Al igual que su edificio colindante, esta promoción destaca por ser un refugio de privacidad: un edificio boutique de solo 7 viviendas donde evitarás las aglomeraciones de las grandes urbanizaciones.
Cada metro cuadrado está optimizado para ofrecerte funcionalidad y estilo. Desde la fachada contemporánea hasta los interiores llenos de luz natural, HC Living redefine lo que significa vivir en Tordera. Compartiendo la excelencia constructiva y las facilidades de aparcamiento con Aires de Xaloc, aquí disfrutarás de una vivienda eficiente, cómoda y lista para entrar a vivir.
Puntos clave de la promoción:
Privacidad Exclusiva: Al tratarse de una promoción de solo 7 vecinos, disfrutarás de la paz y seguridad de una comunidad pequeña y familiar, ideal para desconectar del estrés diario.
Terrazas que dan vida: Sabemos que el exterior es vital en el Maresme. Todas las unidades de HC Living disponen de balcones o terrazas privadas, extensiones naturales de tu salón para disfrutar del aire libre.
Parking en el mismo edificio: Olvídate de buscar sitio. HC Living comparte un cómodo acceso al aparcamiento subterráneo con Aires de Xaloc, un lujo imprescindible que añade valor y comodidad a tu día a día.
Diseño Open Concept: Viviendas con distribuciones abiertas que maximizan la entrada de luz y generan sensación de amplitud. Acabados modernos, texturas cálidas y materiales duraderos.
Eficiencia Maresme Park: Tu hogar, sostenible. Gracias a un aislamiento térmico y acústico de última generación y sistemas de construcción robustos, garantizamos un ahorro energético real y un confort climático todo el año.
HC Living en Tordera no es solo una vivienda, es una inversión inteligente en calidad de vida. Completa la manzana más moderna de la zona y asegura tu futuro en un entorno en crecimiento.
HC Living ha sido diseñado pensando en ti. Al igual que su edificio colindante, esta promoción destaca por ser un refugio de privacidad: un edificio boutique de solo 7 viviendas donde evitarás las aglomeraciones de las grandes urbanizaciones.
Cada metro cuadrado está optimizado para ofrecerte funcionalidad y estilo. Desde la fachada contemporánea hasta los interiores llenos de luz natural, HC Living redefine lo que significa vivir en Tordera. Compartiendo la excelencia constructiva y las facilidades de aparcamiento con Aires de Xaloc, aquí disfrutarás de una vivienda eficiente, cómoda y lista para entrar a vivir.
Puntos clave de la promoción:
Privacidad Exclusiva: Al tratarse de una promoción de solo 7 vecinos, disfrutarás de la paz y seguridad de una comunidad pequeña y familiar, ideal para desconectar del estrés diario.
Terrazas que dan vida: Sabemos que el exterior es vital en el Maresme. Todas las unidades de HC Living disponen de balcones o terrazas privadas, extensiones naturales de tu salón para disfrutar del aire libre.
Parking en el mismo edificio: Olvídate de buscar sitio. HC Living comparte un cómodo acceso al aparcamiento subterráneo con Aires de Xaloc, un lujo imprescindible que añade valor y comodidad a tu día a día.
Diseño Open Concept: Viviendas con distribuciones abiertas que maximizan la entrada de luz y generan sensación de amplitud. Acabados modernos, texturas cálidas y materiales duraderos.
Eficiencia Maresme Park: Tu hogar, sostenible. Gracias a un aislamiento térmico y acústico de última generación y sistemas de construcción robustos, garantizamos un ahorro energético real y un confort climático todo el año.
HC Living en Tordera no es solo una vivienda, es una inversión inteligente en calidad de vida. Completa la manzana más moderna de la zona y asegura tu futuro en un entorno en crecimiento.
HC Living Tordera
HC Living Tordera
HC Living Tordera: Diseño, vanguardia y confort en una ubicación estratégica
HC Living Tordera: Diseño, vanguardia y confort en una ubicación estratégica
HC Living Tordera: Diseño, vanguardia y confort en una ubicación estratégica
Tu nuevo hogar de obra nueva en el Maresme. Solo 7 viviendas exclusivas con parking y terrazas privadas.
Bienvenido a HC Living, la pieza que completa nuestro ambicioso proyecto residencial en Tordera. Si buscas comprar un piso nuevo que combine la tranquilidad de una zona residencial con la máxima conectividad, has llegado al lugar correcto.
HC Living nace como el "hermano" de nuestra promoción Aires de Xaloc, situándose en la calle posterior y consolidando una manzana arquitectónica totalmente renovada y moderna. Con el sello de garantía de Maresme Park, este edificio ofrece el equilibrio perfecto entre independencia y comunidad.
Tu nuevo hogar de obra nueva en el Maresme. Solo 7 viviendas exclusivas con parking y terrazas privadas.
Bienvenido a HC Living, la pieza que completa nuestro ambicioso proyecto residencial en Tordera. Si buscas comprar un piso nuevo que combine la tranquilidad de una zona residencial con la máxima conectividad, has llegado al lugar correcto.
HC Living nace como el "hermano" de nuestra promoción Aires de Xaloc, situándose en la calle posterior y consolidando una manzana arquitectónica totalmente renovada y moderna. Con el sello de garantía de Maresme Park, este edificio ofrece el equilibrio perfecto entre independencia y comunidad.
Tu nuevo hogar de obra nueva en el Maresme. Solo 7 viviendas exclusivas con parking y terrazas privadas.
Bienvenido a HC Living, la pieza que completa nuestro ambicioso proyecto residencial en Tordera. Si buscas comprar un piso nuevo que combine la tranquilidad de una zona residencial con la máxima conectividad, has llegado al lugar correcto.
HC Living nace como el "hermano" de nuestra promoción Aires de Xaloc, situándose en la calle posterior y consolidando una manzana arquitectónica totalmente renovada y moderna. Con el sello de garantía de Maresme Park, este edificio ofrece el equilibrio perfecto entre independencia y comunidad.
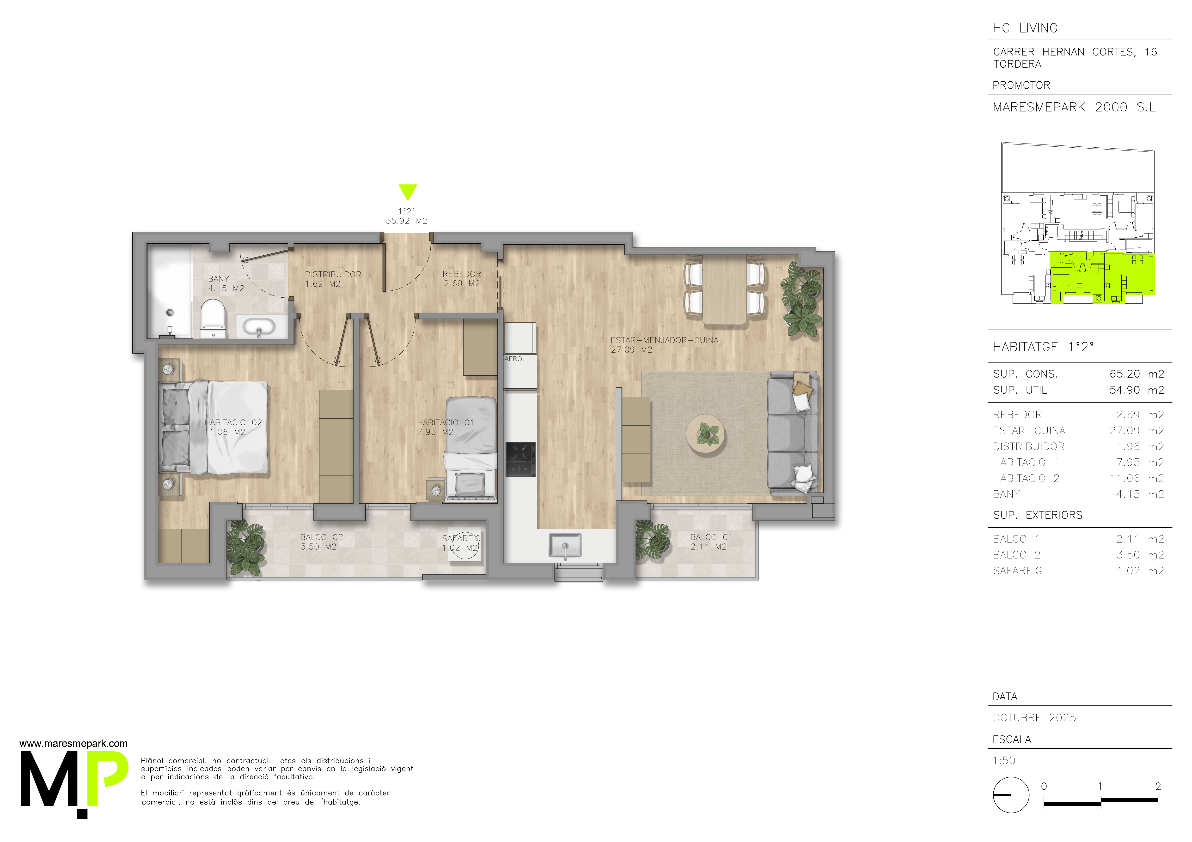
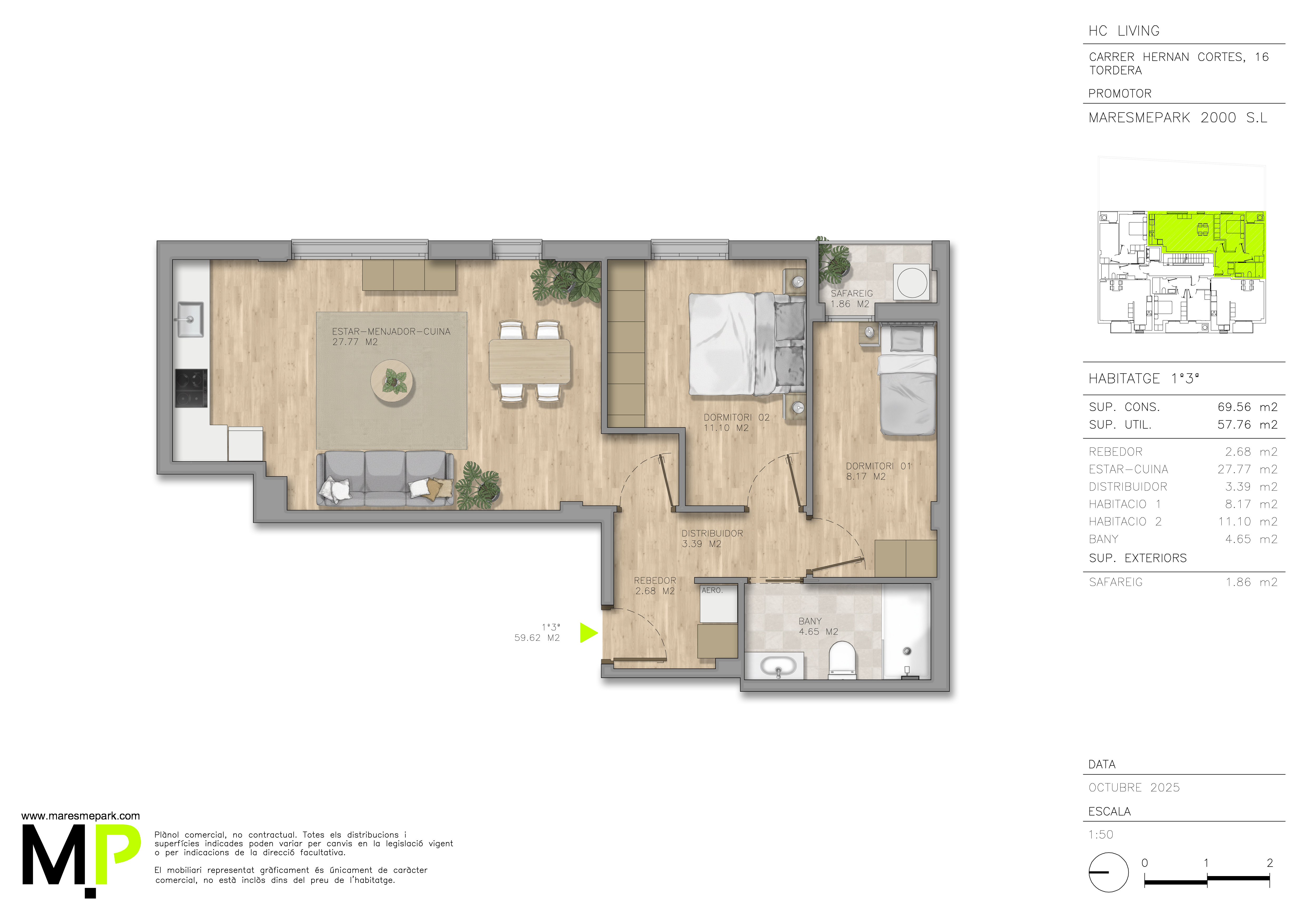
Viviendas Disponibles
Viviendas Disponibles
ESTADO
ESTADO
TIPOLOGÍA
TIPOLOGÍA
SUPERFÍCIE
SUPERFÍCIE
PRECIO
PRECIO
DETALLES
DETALLES
PLANO
PLANO



Síguenos
© Copyrights © 2026 MARESME PARK 2000 S.L
En MaresmePark convertimos tus planes de vivienda en una inversión segura e inteligente.

Síguenos
© Copyrights © 2026 MARESME PARK 2000 S.L
En MaresmePark convertimos tus planes de vivienda en una inversión segura e inteligente.

Síguenos
© Copyrights © 2026 MARESME PARK 2000 S.L
En MaresmePark convertimos tus planes de vivienda en una inversión segura e inteligente.
